e-Fi galerie, Jihlava
Jihlava
Pronájem obchodní jednotky v právě rekonstruované budově e-Fi galerie v Jihlavě. Frekventované místo blízko centra. Parkování zajištěno u objektu.Výtah, WC, internet, úklid zajištěn.
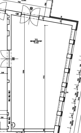
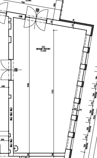
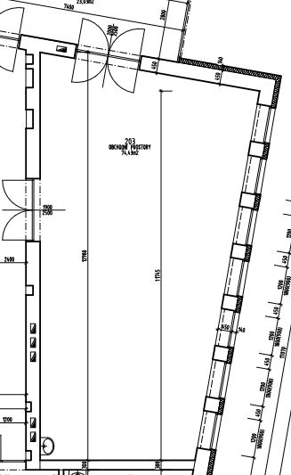
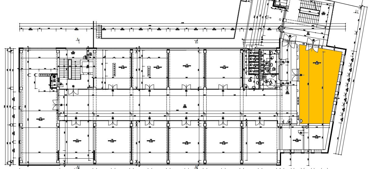
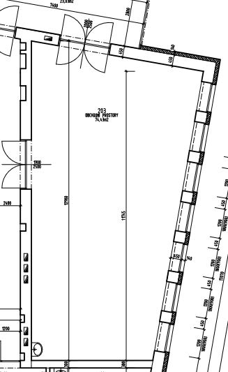
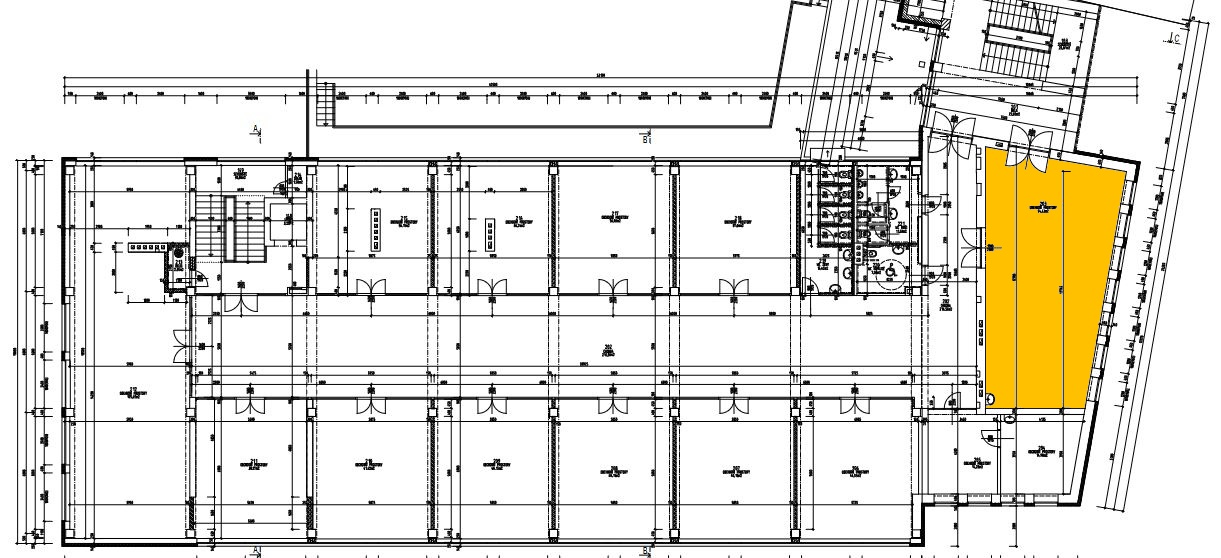
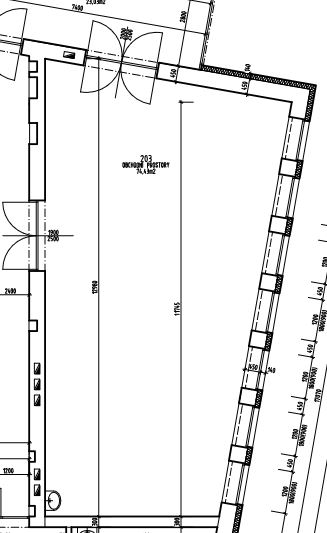
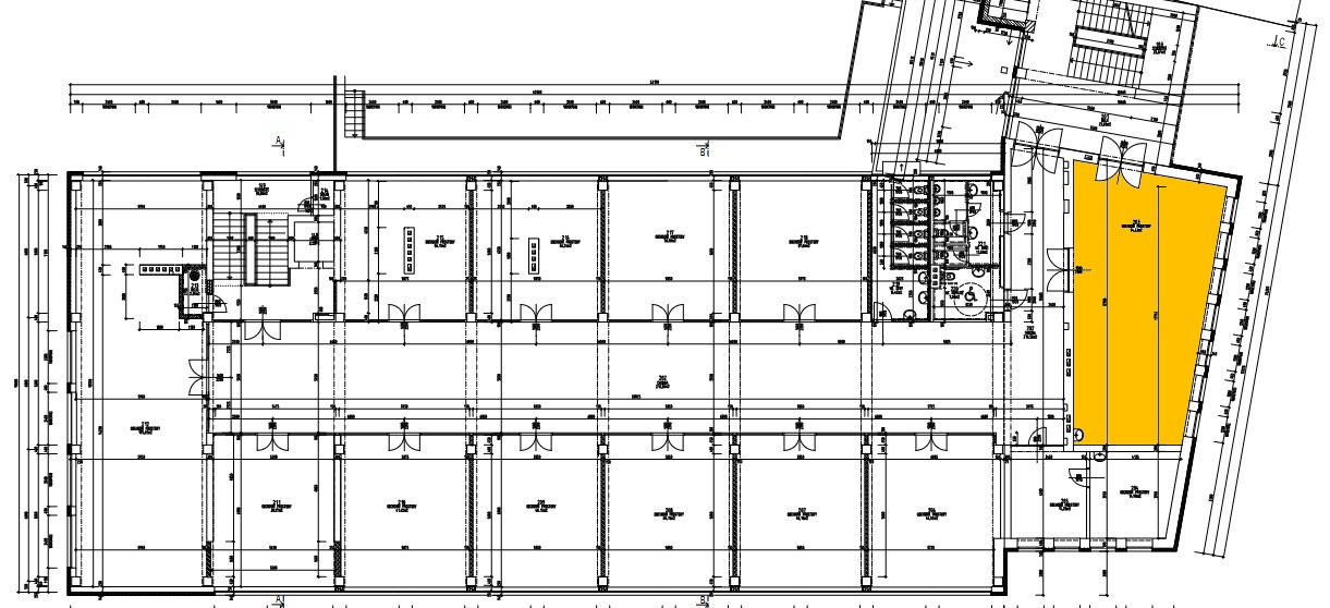
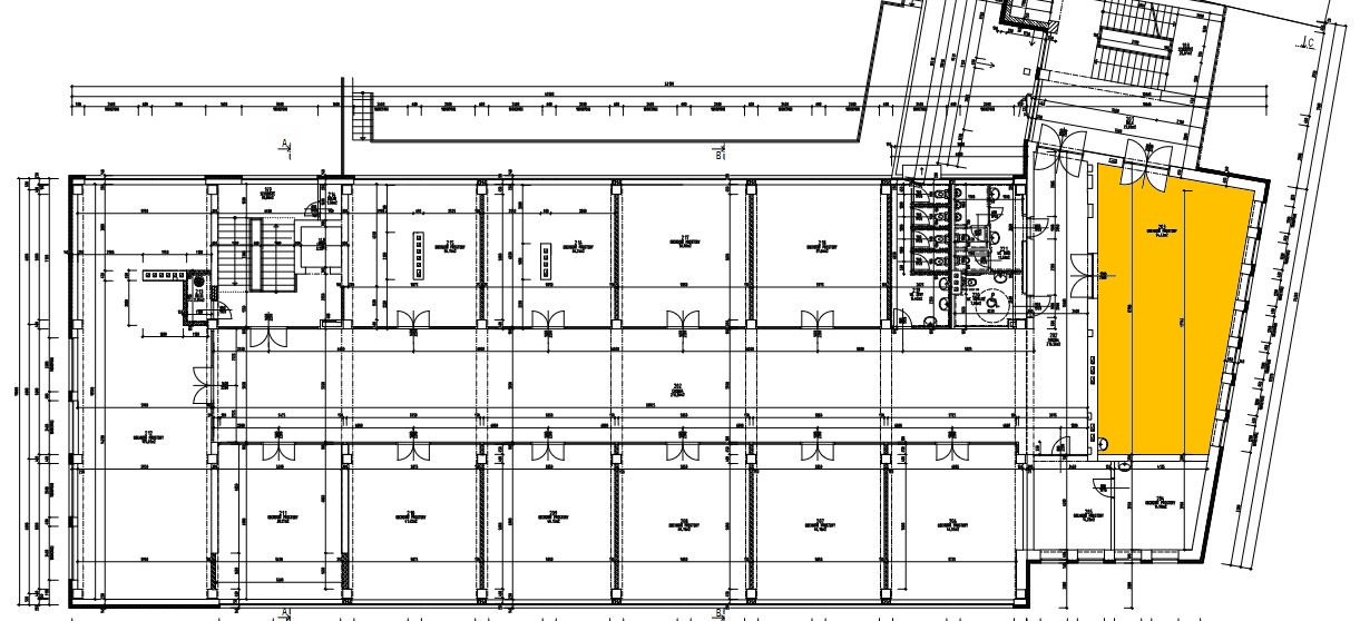
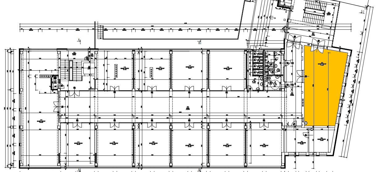
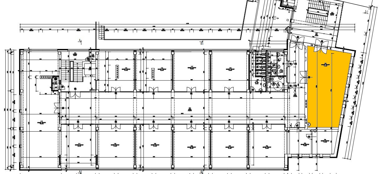
Nabízíme pronájem obchodní jednotky v prvním patře rekonstruované budovy e-Fi galerie na adrese Žižkova 13, Jihlava.
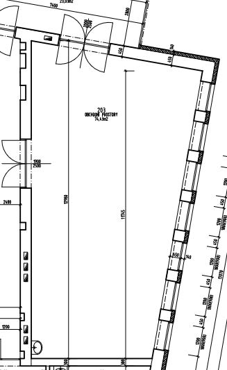
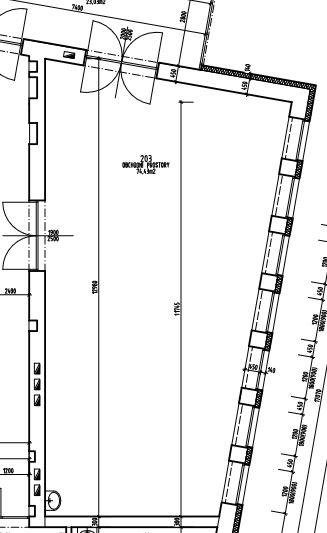
Nabízená obchodní jednotka je o výměře 74,49 m2.
V rámci rekonstrukce a opravy budovy zde vznikl nový osobní výtah, byla provedena výměna oken, zateplení pláště budovy, podlahové topení, vlastní parkoviště ve dvorní části budovy.
V jednotce je možné provozovat jak obchodní a kancelářskou činnost, tak i služby jako kosmetika, tetovací salón, nechtařské studio apod.
Celková cena pronájmu je 29.621,- Kč za měsíc, včetně energií (vlastní elektroměr) a služeb.
Vratná kauce 1x měsíční nájem.
Neplatíte provizi RK!!
Rezervujte si pronájem obchodních jednotek a zajistěte si tak ten nejvhodnější prostor pro Vaše podnikání!!!
Na rozjezd Vašeho podnikání Vám na první měsíc slevíme 100% nájemného!!!
V budově jsou k pronájmu volné i další kancelářské, nebo obchodní prostory. Bližší informace u makléře zakázky.
| Cena | 20 218 Kč |
| Druh prostor | Obchodní |
| Energetická náročnost budovy | C |
| PENB dle vyhlášky | 78/2013 Sb. |