Bytový dům v Jeseníkách
bytový důmPopis projektu
Rekonstrukce bytového domu v obci Jeseník
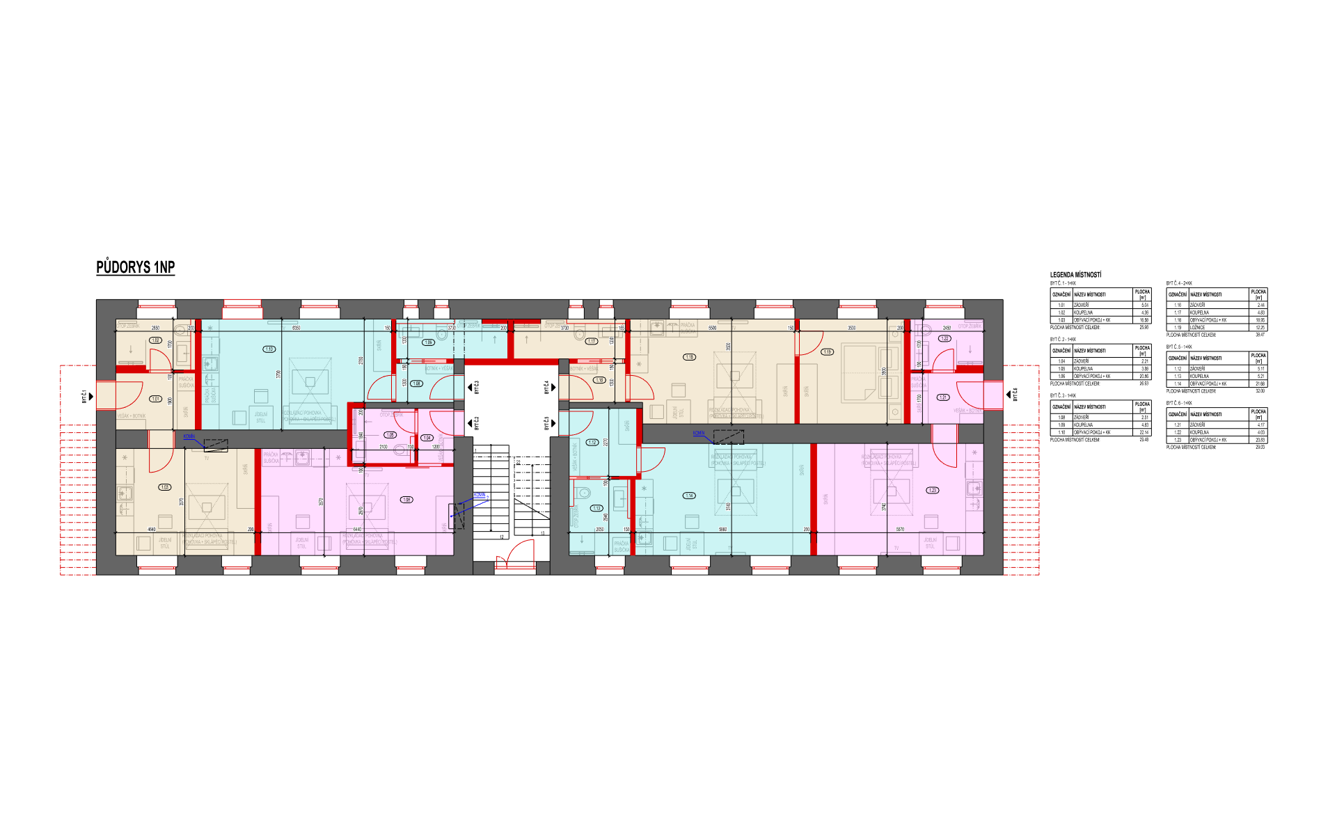
Projekt zahrnuje kompletní rekonstrukci bytového domu v obci Jeseník, který bude po dokončení nabízet 12 moderních bytových jednotek. Přesné dispozice bytů mohou být ještě upraveny, ale aktuální plán zahrnuje:
- 1. nadzemní podlaží (1NP): 5 bytů typu 1+kk a 1 byt typu 2+kk
- 2. nadzemní podlaží (2NP): 5 bytů typu 1+kk a 1 byt typu 2+kk
Rekonstruované byty budou částečně prodávány a částečně pronajímány, což poskytne flexibilitu pro různé potřeby budoucích obyvatel.
Projekt se zaměřuje na vytvoření komfortního a moderního bydlení s důrazem na kvalitu a funkčnost.
Základní informace
| Počet nadzemních podlaží | 3 |
| Počet jednotek (bytů) | 12 |
| Plocha bytů/ubytovacích jednotek | 397,66 m² |
| Plocha společných prostor | 85,14 m² |
| Plocha ostatních nebytových prostor | 154,01 m² |
| Celková užitná plocha | 551,67 m² |
| Celková plocha | 636,81 m² |
| Celková plocha pozemku/ů | 1 062,00 m² |
| Hodnota projektu v roce 2024 | 10 730 000 Kč |
| Odhadovaná budoucí tržní hodnota nemovitosti | 45 800 000 Kč |
| Předpokládaný budoucí investiční náklad | 25 000 000 Kč |
| Znalecký posudek | ZP ev.č. 054749-2025 BD Jeseník |
Fotogalerie
Investujte do nemovitostních projektů investiční skupiny e-Finance, a.s.
Jednoleté dluhopisy
s výnosem až 7 %
Roční úrok až 7 %,
investice na 1 rok
Dvouleté dluhopisy zajištěné akciemi EFI Hotel & Properties
s výnosem až 8 %
Roční úrok 8 % a 7 %,
investice na 2 roky
Tříleté dluhopisy zajištěné Zámkem Račice
s vysokým výnosem až 9 %
Roční úrok 9 %, 8 % a 7 %
investice na 3 roky
Tříleté dluhopisy zajištěné akciemi EFI Hotel & Properties
s vysokým výnosem až 9 %
Roční úrok 9 %, 8 % a 7 %
investice na 3 roky
Pětileté dluhopisy zajištěné akciemi EFI Hotel & Properties
s vysokým výnosem až 8,5 %
Roční úrok 8,5 %
investice na 5 let
Čtyřleté protiinflační dluhopisy
e-Finance CZ
Roční úrok INFLACE + 1 %,
investice na 4 roky
Kontakt
Lokalita
Kontaktujte nás
Chcete se na něco zeptat? Rádi vám pomůžeme! Napište nám a my se vám ozveme co nejdříve.













